Neustadt an der Orla, Lutherhaus Bauherr: Stadtverwaltung Neustadt an der Orla Maßliche Bestandserfassung - Grundrisse - Schnitte
Rudolstadt, Ratsgasse 4 Bauherr: Privater Bauherr Erfassung der Gebäudedaten als 3D Modell und Übergabe an das Planungsbüro
Neustadt an der Orla, Schlossschule Bauherr: Stadtverwaltung Neustadt an der Orla - Anfertigung von Messbildern für einzelne Wandabschnitte
Eisenach, Stadtpfarrkirche St. Georgen Bauherr: Ev.-Luth. Kirchgemeinde Eisenach Ergänzende Bestandserfassung als 3D Aufmaß - Grundrisse 1. Emporenebene 2. Emporenebene 3. Emporenebene -Schnitte 1 Längsschnitt 2 Querschnitte
Neustadt an der Orla, Schlossgasse 22 Bauherr: Stadtverwaltung Neustadt an der Orla Maßliche Bestandserfassung - Grundrisse - Schnitte - Ansichten als Messbild
Maßliche Bestandserfassung - Grundrisse - Schnitte - Ansichten als Messbild
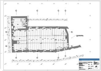
Mühlhausen, J.-A.-Röbling Schule Gebäude B Bauherr : LRA Unstrut-Hainich Kreis Jahr : Dezember 2012 - 3D Aufmaß - Grundrisse - Schnitte
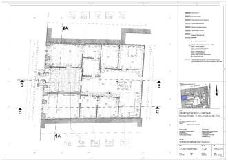
Rudolstadt, Jenaische Straße 6 Bauherr : Privat Jahr : März 2016 - 3D Aufmaß - Grundrisse - Schnitte
Schwarzburg Bauherr : Privat Jahr : Mai 2016 - Erfassung der Geländegeometrie - Erstellung Freiflächenplanung
REFERENZEN - MAßLICHE BESTANDSERFASSUNG - TACHYMETERVERMESSUNG
Beispiel 2.Obergeschoss
Quittelsdorf Nr. 31 Bauherr : Privat Jahr : Mai 2016 - Erfassung der Gebäudekubatur - Planung Ersatzneubau
Eisenach, Stadtpfarrkirche St.Georgen Aufmassrohdaten 3D Aufmaß
REFERENZEN DIGITALAUFMASS IM ANGESTELLTENVERHÄLTNIS 1995-2005 Objekt     Bauherr Schulplatz 9 – Rudolstadt   Stadtverwaltung Rudolstadt Strumpfgasse 21 – Rudolstadt   Stadtverwaltung Rudolstadt Kirchgasse 20 – Ranis   Stadtverw. Ranis / Thür. Landesamt für Denkm. Jagdschloß  - Klosterdomäne Paulinzella   Stiftung Thüringer Schlösser und Gärten Zinsboden – Klosterdomäne Paulinzella   Stiftung Thüringer Schlösser und Gärten Herrenhaus – Katzhütte   Gemeinde Katzhütte Zeughaus – Schloß Schwarzburg   Stiftung Thüringer Schlösser und Gärten Magarethenstraße 7/8, Pforte 1 – Kahla   Stadtverwaltung Kahla Köditzgasse 1 – Saalfeld   Privater Bauherr Anger 4 – Rudolstadt   Privater Bauherr / Stadtverwaltung Rudolstadt
Minim velit, ex velit culpa sed sint ad fugiat, nostrud nulla consequat ipsum ex: Eiusmod veniam culpa. Velit sit ullamco amet est eiusmod amet. Sunt tempor elit. Ad amet, aute minim laboris cupidatat sunt.
Minim velit, ex velit culpa sed sint ad fugiat, nostrud nulla consequat ipsum ex: Eiusmod veniam culpa. Velit sit ullamco amet est eiusmod amet. Sunt tempor elit. Ad amet, aute minim laboris cupidatat sunt.
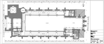
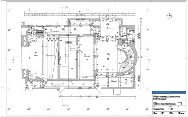
Rudolstadt Theater Bauherr : Thüringer Landestheater Jahr : Juni 2018 Maßliche Bestandserfassung - Grundrisses - Schnitte
Jena Zwätzen, Pfarrgasse 5 - Komturei  Auftraggeber	:	I.V. Immobilien  Invest GmbH, Herborn Jahr			:	August 2018  Maßliche Bestandserfassung - Grundrisses - Schnitte - Fassaden - Messbilder
Rudolstadt, Stadtkirche Gruft, Turmgruft Auftraggeber : Ev. Kirchgemeinde Rudolstadt Jahr : Februar 2019 - 3D Erfassung und Visualisierung - Konzept zur Anordnung der Särge
Leutra, Obermühle Leutra Auftraggeber : Stadt Jena, UDSB Jahr : November 2021 Maßliche Bestandserfassung - Grundrisse - Schnitte - Ansichten als Messbilder - Kanalvermessung
Wasserburg Kapellendorf - Prinzessinenbau Auftraggeber : Stiftung Thüringer Schlösser und Gärten Jahr : August 2020 Maßliche Bestandserfassung - Grundrisse - Schnitte - Ansichten als Messbilder - Höhenabgleich zwischen Gebäudeteilen